Skip to main content
Menu
Úvod
Profil
Projekty a realizace
Služby
Kontakt
Press enter to begin your search
Close Search
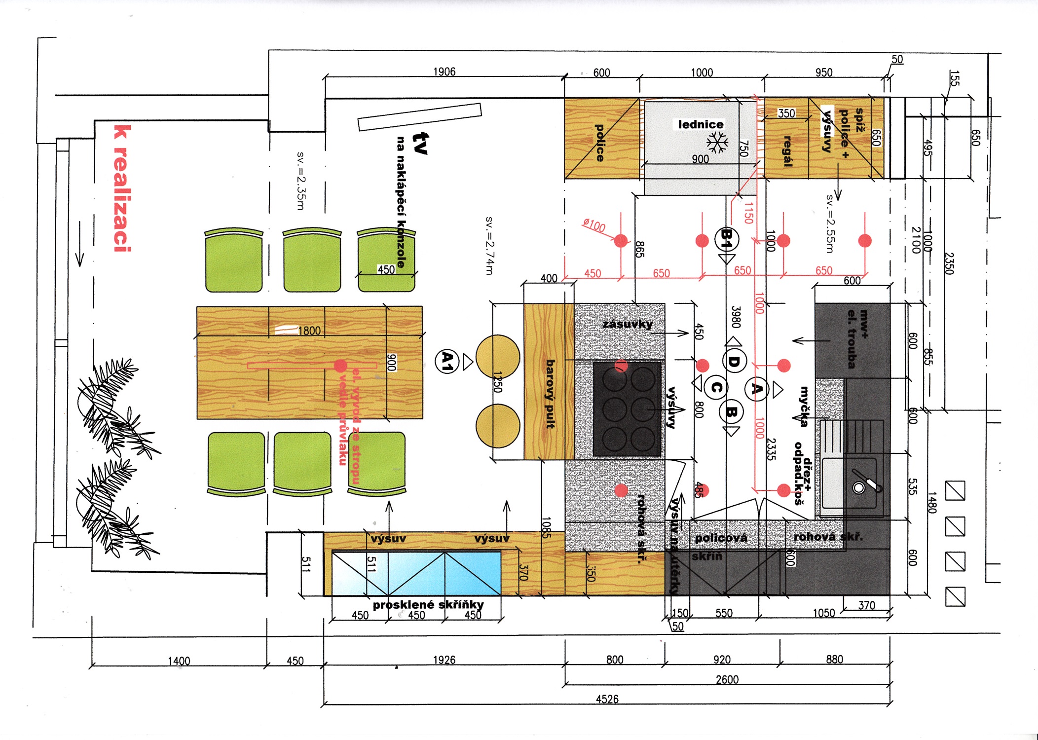
Kuchyně Ořechov
ZPĚT
Návrh 2024
Close Menu
Úvod
Profil
Projekty a realizace
Služby
Kontakt